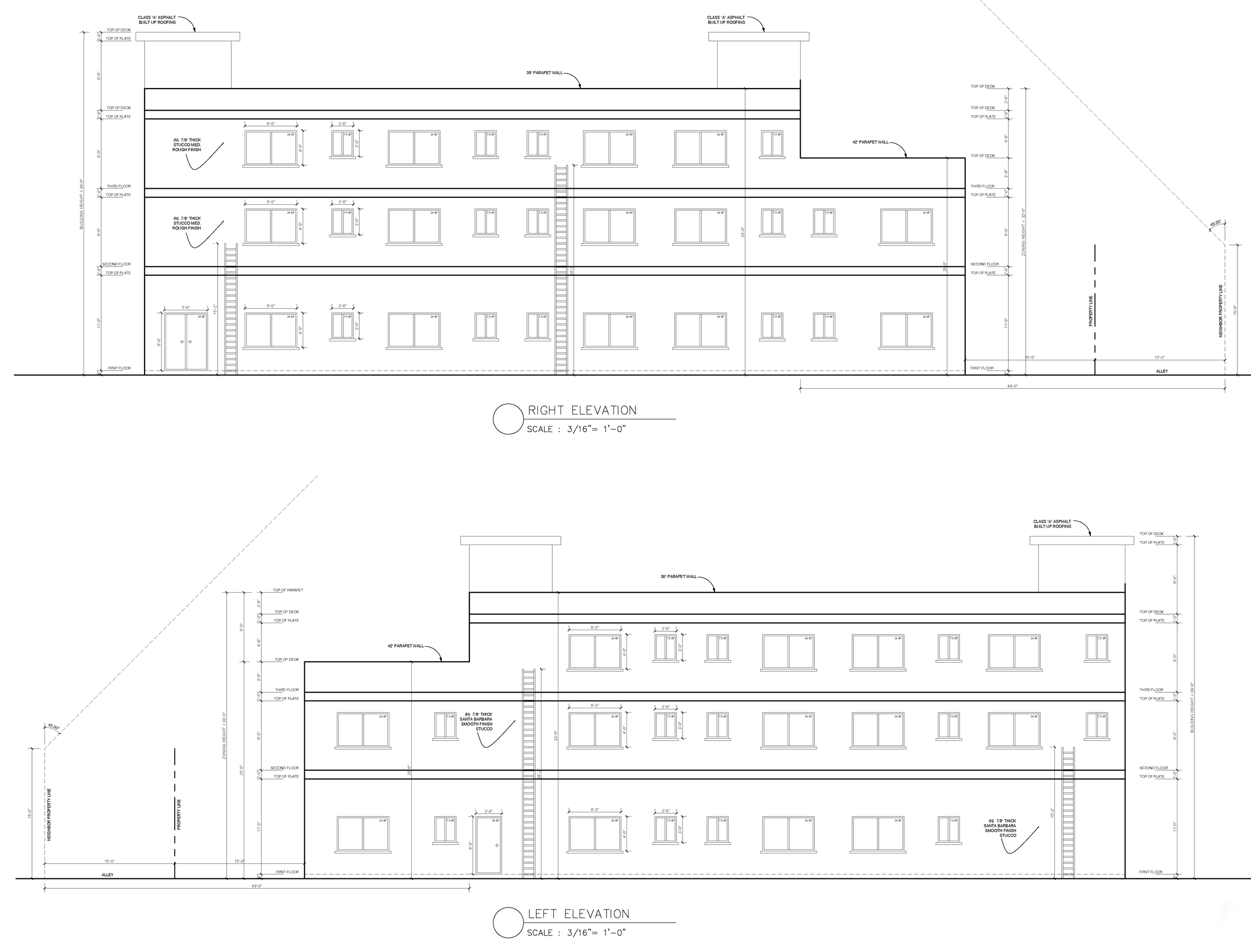
Price: $2,268,000 | Redevelopment - 54 Unit Apartment Building
Lot Size: 17,357 Square Feet | Project’s Building Area: 30,210 Square Feet
ADDRESS
2709-2713 W. Florence Avenue
Los Angeles, CA 90043
PROPERTY HIGHLIGHTS
• 54-unit RTI Project. Ready to pull the permit and break ground
• Two 27-unit buildings on one parcel
• 3 stories, fully sprinklered
• 100% Affordable
• TOC Project with no parking
• Lot size: ±17,357 square feet
• Project Building Area: ±30,210 square feet
• Zoning: C2-1VL-CPIO
